Здається офіс Київ, Печерський, Звіринецька, 59, м. Звіринецька (№ 14-100-246)
Ціна: 6 100 $ + комунальні

Характеристики
| Ціна: | 6 100 $ + комунальні |
|---|---|
| № об'єкта: | 14-100-246 |
| Тип: | бізнес центр |
| Площа: | 410.2 м2 |
| Кабінетів: | 10 |
| Поверх: | 3 / 4 |
| Додатково: | окремий вхід |
Адреса: Київ, Печерський, Звіринецька, 59, м. Звіринецька
Оренда офісу У самому серці Києва, на вулиці Звіринецька, 59, ви маєте змогу орендувати просторий офіс у ЖК 'Тріумф'.
Це чудова можливість для створення вашого власного робочого простору в одному з найпрестижніших місць міста. Офіс знаходиться на 3 та 4 поверсі. Окремий вхід. Його загальна площа становить 410 квадратних метрів, що гарантує вам достатньо місця для організації всіх необхідних робочих зон та кабінетів.
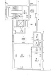
Планування 3-ого поверху - 3 кабінета, санвузол, ліфт між третім та четвертим поверхом.
Планування 4-ого поверху - 4 опенспейса тераса 2 санвузла Додатковим бонусом є тераса площею 22,8 квадратних метрів, де ви зможете облаштувати зону відпочинку для своєї команди, щоб насолоджуватись свіжим повітрям та красивим видом на місто під час перерв або зустрічей.
Дизайн приміщення виконаний у світлих відтінках, стіни частково оздоблені під білу цеглу, що додає приміщенню стилю та візуально його збільшує. Але зверніть увагу, що офіс орендується без меблів.
Офіс повністю автономним зі своїм окремим входом. Є можливість встановлення своєї окремої та незалежної системи живлення.
Розташування свого бізнесу в житловому комплексі 'Тріумф' гарантує вам доступ до розвиненої інфраструктури та всіх необхідних послуг.
Для орендаря на довгостроковий термін є можливість надання ремонтних канікул!!! Обговорюється окремо для кожного випадку.
_____________________________________________________________________________
Office rental in the heart of Kyiv, at 59 Zvirynetska Street, you can rent a spacious office in the Triumph residential complex.
This is a great opportunity to create your own workspace in one of the most prestigious locations in the city. The office is located on the 3rd and 4th floors. It has a separate entrance. Its total area is 410 square metres, which guarantees you enough space to organise all the necessary work areas and offices.
The layout of the 3rd floor includes 3 offices, a bathroom, and a lift between the third and fourth floors.
The layout of the 4th floor includes 4 open spaces, a terrace, and 2 bathrooms. An additional bonus is a 22.8 square metre terrace (part of the total area), where you can set up a relaxation area for your team to enjoy the fresh air and beautiful views of the city during breaks or meetings.
The interior design is done in light colours, with walls partially finished in white brick, which adds style and visually enlarges the space. Please note that the office is rented unfurnished.
The office is completely self-contained with its own separate entrance. It is possible to install your own separate and independent power supply system.
Locating your business in the Triumph residential complex guarantees you access to developed infrastructure and all necessary services.
For long-term tenants, there is the possibility of renovation breaks!!! This is discussed separately for each case.
























